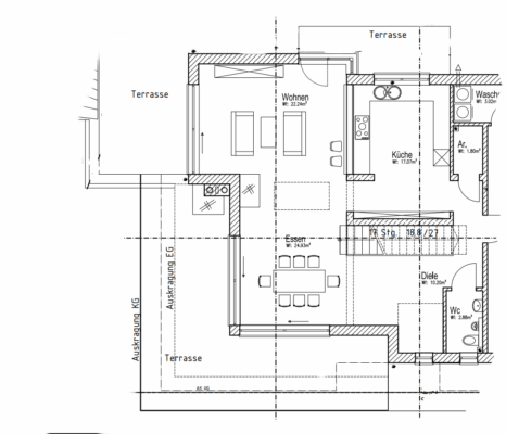
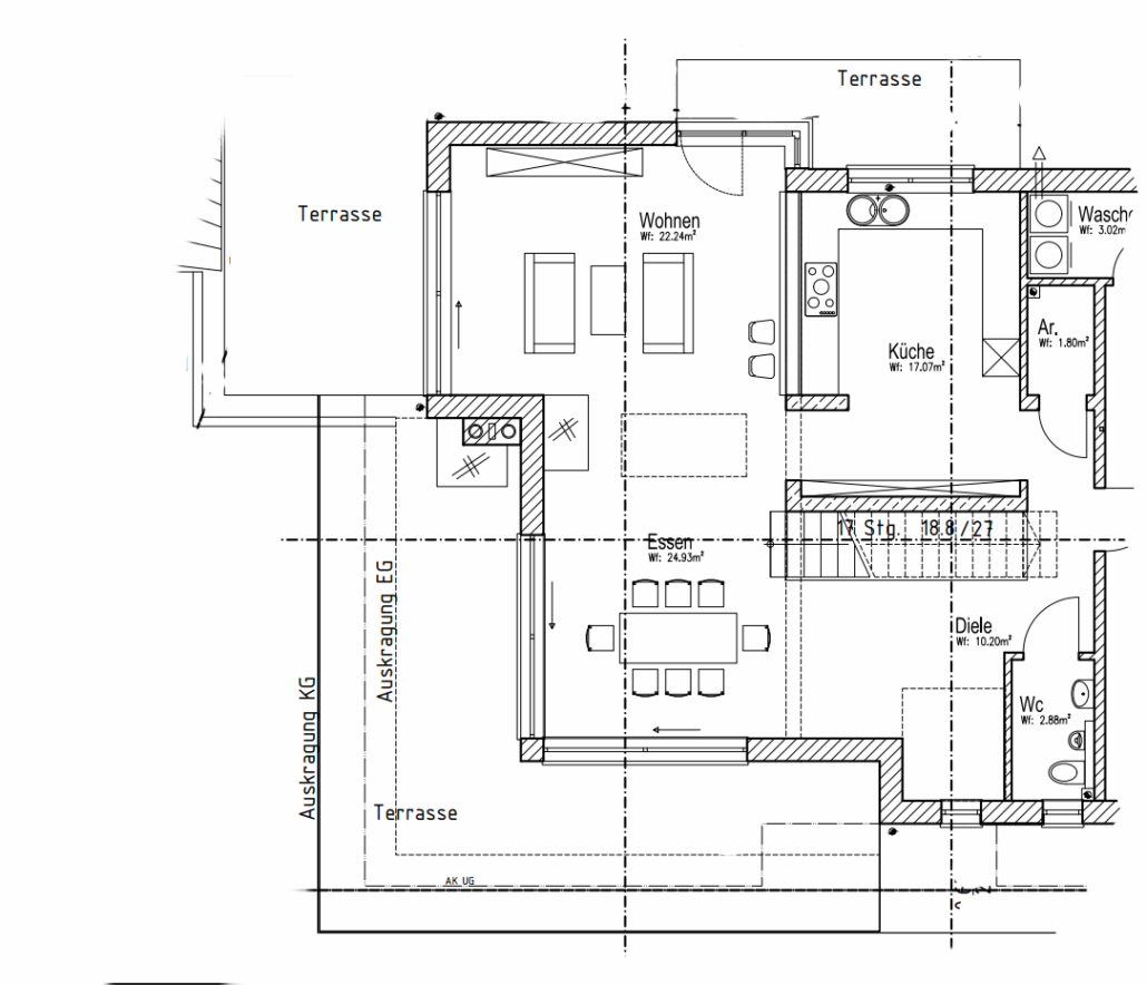
Wohnhaus am Theimicker Weg
In direkter Nachbarschaft zu dem Mehrfamilienhaus, welches 2018 entstanden ist, wird ein repräsentaives Wohnhaus errichtet.
Moderne Gestaltung, Ganzglasgeländer Terrassen über 2 Etagen zeichnen die Architektur aus. Ein unverbaubarer Blick in die Natur gehört dazu.










