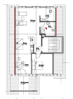
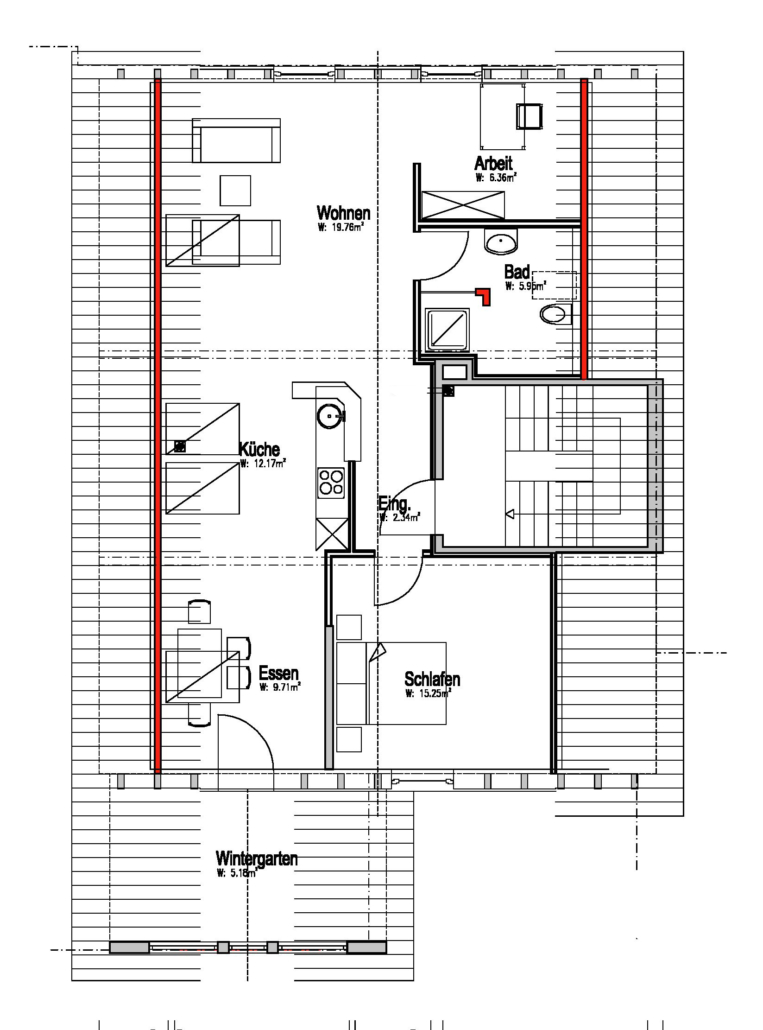
Wohn- und Geschäftshaus am Markt in Olpe – neue Fassade, energetisch Saniert und um eine Wohnung erweitert
Im Herzen von Olpe, direkt am Marktplatz wird im Denkmalbereich ein historisches Fachwerkhaus energetisch modernisisiert. Im gleichen Zuge wird der alte Dachboden zu einer Wohnung ausgebaut.
Die Umbaumassnahme startete im Frühjahr 2025 mit der Fassaden- und Dachsanierung, diese wird in den nächsten Wochen abgeschlossen. Ab Herbst wird der Dachgeschossausbau für neuen hochwertigen Wohnraum in Olpes Kernstadt sorgen.






